Hero sektion
Hero sektion

Dit nye hjem
skabt med hjertet

Kvalitetsboliger, hvor funktion møder æstetik - uden kompromis.

Læs mere

Salg
Salg
Salg
Salg
Salg
Salg

Salg

Georg Walther Andersens Vænge, Nørrestrand Horsens

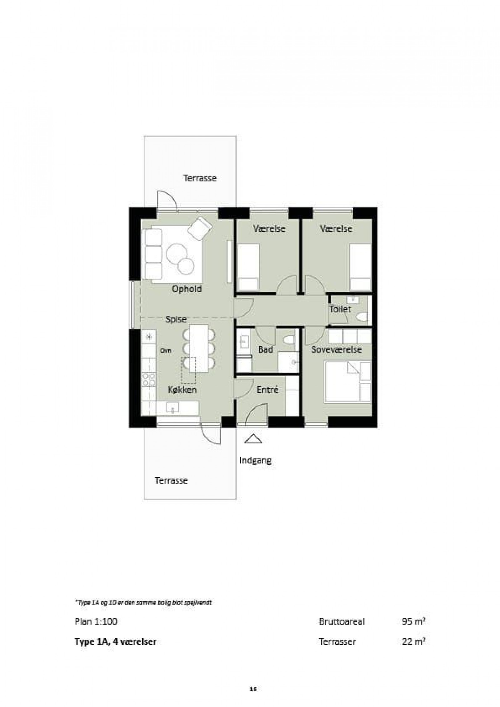
10 moderne og stilfulde rækkehuse på ca. 95 kvm i den nye bydel Nørrestrand i det nordlige Horsens. Nørrestrand profilerer sig som naturbydel, og derfor er boligerne designet til at smelte sammen med naturen.

Hver bolig er gennemtænkt og funktionelt indrettet med en rummelig entré, et åbent køkken-alrum og stue i ét, to/tre værelser, et badeværelse samt et gæstetoilet. De enkelte boliger adskiller sig primært ved deres placering i forhold til ver­dens­hjør­ne­r­ne og solforholdene, hvilket sikrer varierende lysindfald og oplevelse af uderummene.

Interesseret eller blot nysgerrig? Læs mere om projektet hos vores samarbejdspartner EDC.

Georg Walther Andersens Vænge, Nørrestrand Horsens

Hus oversigt
Til salg
Etape 2
Etape 3

Om Vangsoe Huse

Vangsoe Huse er resultatet af et samarbejde mellem Røjkjær ApS og Vangsoe Holding ApS, to firmaer med et solidt kendskab indenfor projektudvikling, byggeri og ejendomsadministration.

Med supplerende kompetencer er det støbt et fundament til Vangsoe Huse ApS, som har til formål at udvikle, opføre og sælge nøglefærdige signaturhuse til slutbrugere.

Vores huse retter sig til alle som gerne vil have en mindre bolig med carport og egen have, uden at skulle gå på kompromis med kvaliteten.

Om Vangsoe Huse

Hvorfor bygge mindre?

Mindre boliger. Større værdi.

Hos Vangsoe Huse handler det om at tilpasse og tænke smart. Vores boliger er kompakte, gennemtænkte og rummer alt det, man forventer af et moderne hjem: 2-3 soveværelser, to badeværelser, køkkenalrum, vinkelstue, carport, skur og private udearealer.

Vi bygger med omtanke for omverden

Både i forhold til plads, forbrug og økonomi. Et mindre areal betyder mindre vedligeholdelse, lavere varmeforbrug og færre udgifter i hverdagen. Det giver frihed til at bruge tiden og pengene på det, der tæller.

Arkitektur med mennesket i centrum

Vi tror på, at boliger skal tilpasses mennesker – ikke omvendt. Vores projekter tager afsæt i en arkitektonisk vision om at bygge på menneskelig skala og skabe plads til både privatliv og fællesskab.

Associerede virksomheder

Mød teamet

Hos Vangsoe Huse er vi stolte af vores dedikerede og erfarne team, der hver dag arbejder for at levere projekter af højeste kvalitet. Vores medarbejdere bringer en bred vifte af kompetencer til bordet, som sammen skaber stærke resultater.

Bjarke R. Pedersen

Bjarke R. Pedersen

Byggeri og udvikling

brp@vangsoehuse.dk

+45 20 47 90 92

Bram Zwartbol

Bram Zwartbol

Økonomi og udvikling

bz@vangsoehuse.dk

+45 25 30 00 57

Kontakt Vangsoe Huse

Vangsoe Huse ApS
Erhvervsbyvej 11, 2
8700 Horsens
CVR: 37655090
Fakturamail: faktura@vangsoehuse.dk

Du er meget velkommen til at kontakte os via formularen, så vender vi tilbage hurtigst muligt.